Kiba Sta. 1LDK 910
Shiohama 2, Koto-ku, Tokyo
Tokyo Metro Tozai Line Kiba Sta. 9 min by walk
Property Details
Features
Other Available Rooms
Maintenance Fee
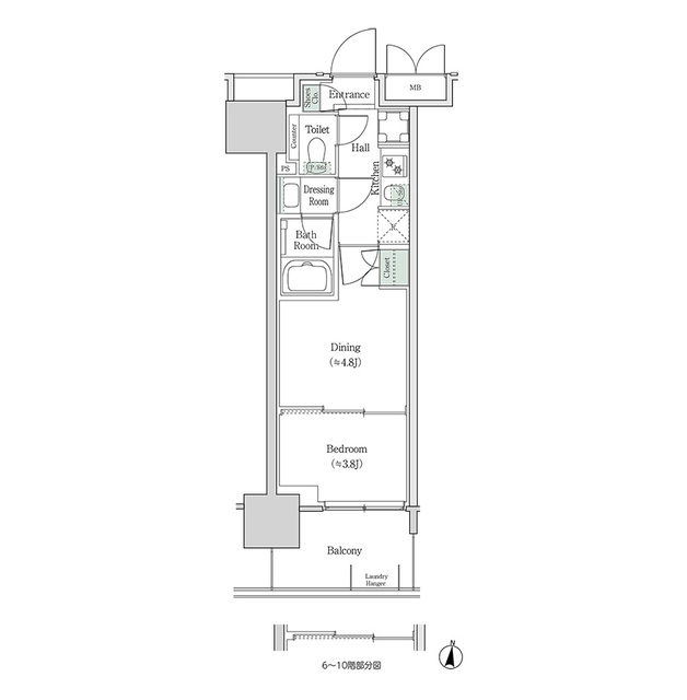
Size
¥204,000
¥20,0001LDK
39.87m2¥160,000
¥20,0001LDK
30.94m2¥150,000
¥20,0001LDK
30.94m2¥151,000
¥20,0001LDK
30.94m2¥153,000
¥20,0001LDK
30.94m2¥152,000
¥20,0001LDK
30.94m2¥206,000
¥20,0001LDK
39.87m2
































0345792103