Kiba Sta. 2K 222
¥126,000 + ¥20,000
(Maintenance Fee)
Shiohama 2, Koto-ku, Tokyo
Tokyo Metro Tozai Line Kiba Sta. 9 min by walk
Property Details
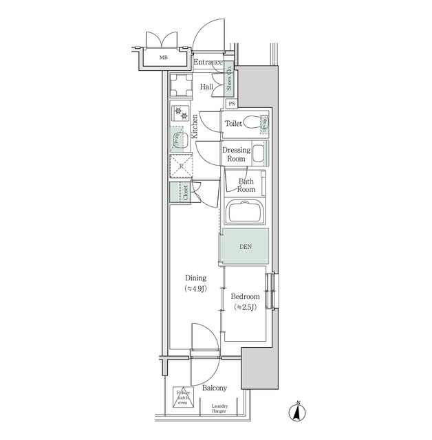
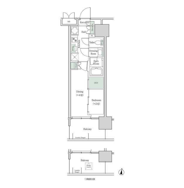
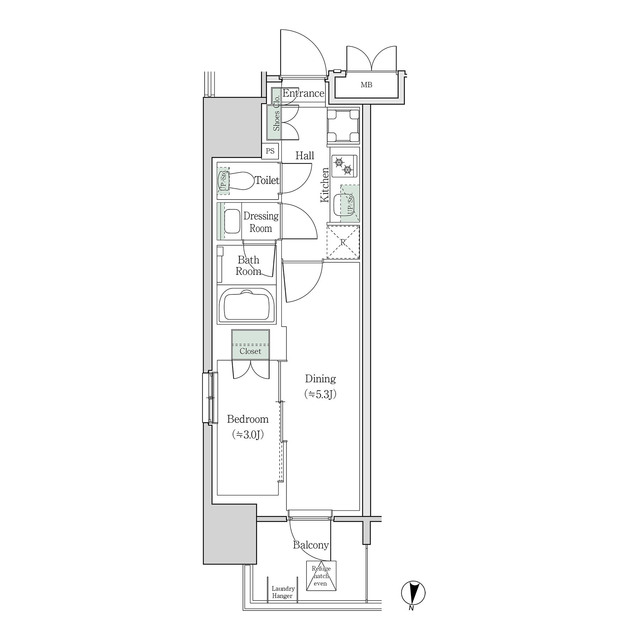
Layout
2K
Size
27.65m2
Year Built
2026
Floor
2F /
18F
Window Direction
South
Available from
Please ask the agent
Type
Apartment
Structure
Heavy Steel
Contract Type
Ordinary Lease
2 Years
Transaction Type
Agency
Features
Other Available Rooms
Floor Plan
Floor
Rent
Maintenance Fee
Maintenance Fee
Layout
Size
Size
Details
¥204,000
¥20,0001LDK
39.87m2¥160,000
¥20,0001LDK
30.94m2¥158,000
¥20,0001LDK
30.94m2¥150,000
¥20,0001LDK
30.94m2
























0345792103