三轩茶屋车站 1LDK 1401
¥423,800 + ¥0
(管理费)
东京都世田谷上马一丁目
东急田园都市线, 东急世田谷线三轩茶屋车站 徒歩7分钟
7 minutes from Sangenjaya Station, the property is conveniently located by Carrot Tower with shopping centres and a theatre. A 24-hour supermarket and a shopping district has everything from groceries to daily necessities. This exciting area is great to find your favorite shops with fashionable cafes and restaurants, including popular bakeries. The property faces the main street, and there is also a police station which makes it a safe location. Behind the property there are vintage shops and such that are typical of the culture of Sangenjaya. Setagaya is also very appealing with lots of greenery where you can go jogging on greenways or take a walk to Komazawa Park.
*Move-in Fees (One-time Payment, applicable to all contracts.)
Service Fee(Non-refundable): 10% of Rent Subtotal
Move Out Cleaning Fee: 25% of List Price
*Optional Fees (If Applicable)
Pet Fee: ¥110,000 (Non-refundable)
Bicycle Parking Registration Fee: ¥3,300 (One-time payment per bicycle)
Rental Futon Set: ¥22,000 (One-time payment per set)
*Included in Service Fee:
- Utilities & Internet Fees
- Customer Support & Emergency Call Center
- No Brokerage Fee
- No Key Money Required
*Kitchen Essentials Provided:
- Cooking utensils and cutlery are included in the room.
https://drive.google.com/file/d/1sSyG7K30TXeBjV3xSmGH7E2I8Xqu1zRB/view
物件资讯
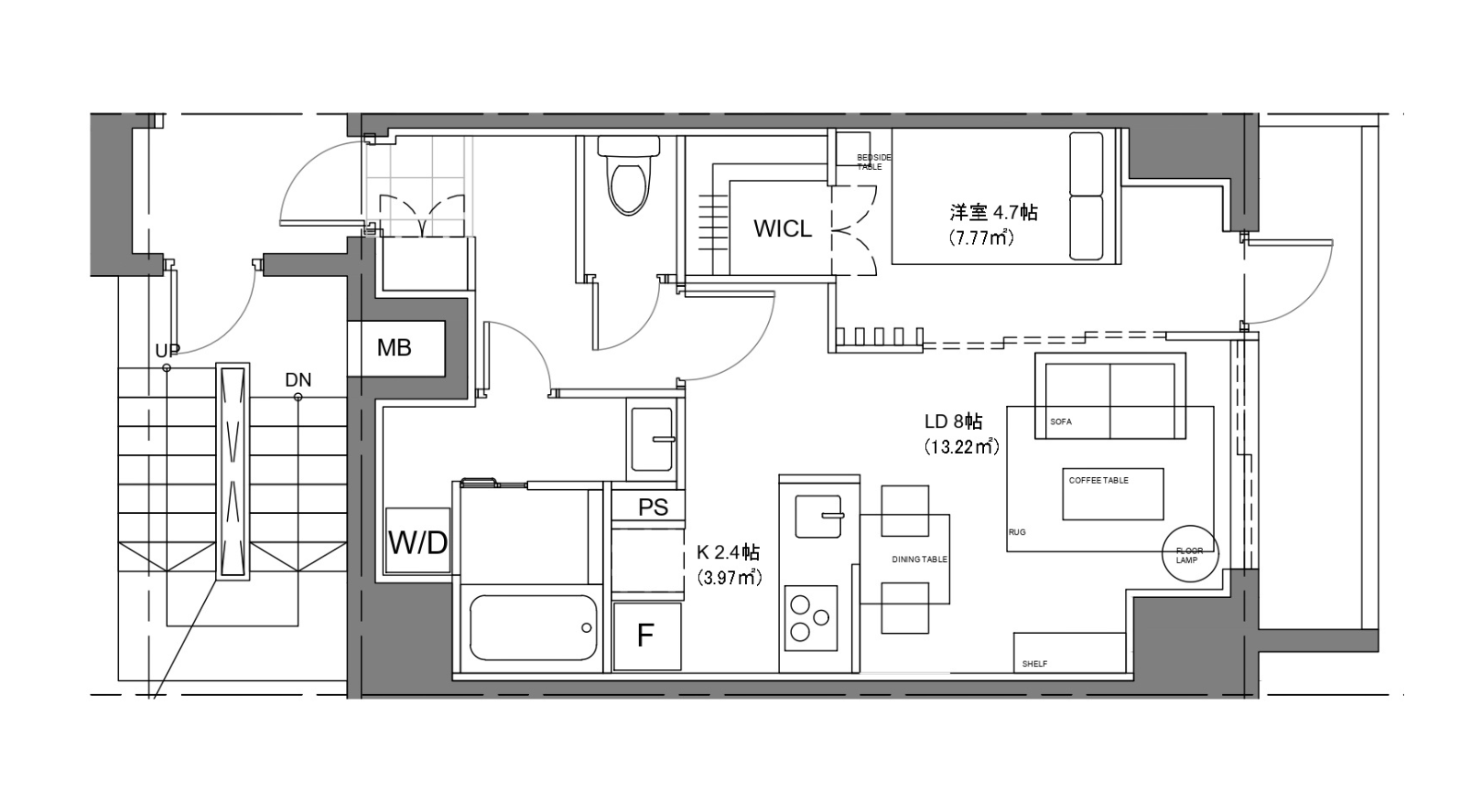
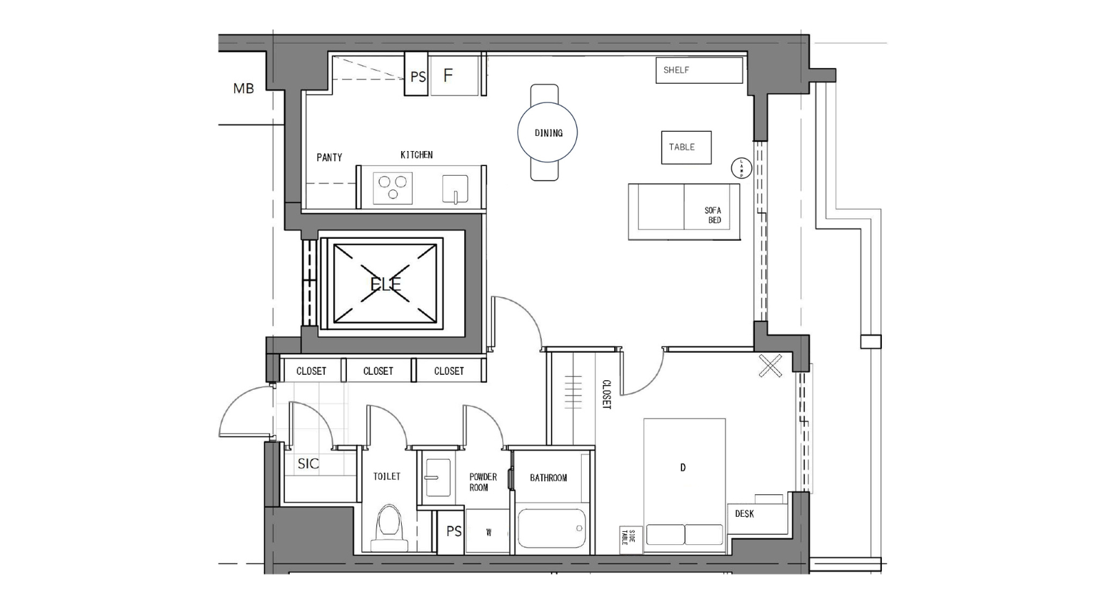
格局
1LDK
面积
40.68m2
建筑年数
2020
楼层
14F /
14F
房屋朝向
东方
起租日期
请询问仲介公司
类型
月租型公寓
结构
钢筋混拟土
契约种类
定期租赁合约
一个月
交易形式
屋主自租
特色
其他有空室的物件
平面图
楼层
租金
管理费
管理费
格局
面积
面积
物件资讯






















09097098533