Shinjuku Sta. 1K 205
¥139,000 + ¥15,000
(Maintenance Fee)
Shinjuku 6, Shinjuku-ku, Tokyo
JR Yamanote Line Shinjuku Sta. 7 min by walk
Tokyo Metro Fukutoshin Line Shinjuku-sanchome Sta. 7 min by walk
Tokyo Metro Marunouchi Line Shinjuku-gyoenmae Sta. 9 min by walk
Property Details
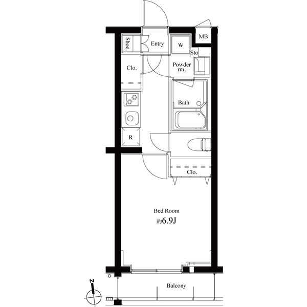
Layout
1K
Size
25.5m2
Year Built
2018
Floor
2F /
4F
Window Direction
East
Available from
Now
Type
Apartment
Structure
Heavy Steel
Contract Type
Ordinary Lease
2 Years
Transaction Type
Agency





















0345792103