Ayase Sta. 1LDK 0401
¥147,000 + ¥15,000
(Maintenance Fee)
Ayase 3, Adachi-ku, Tokyo
JR Joban Line, Tokyo Metro Chiyoda Line, Tokyo Metro Chiyoda Line (Ayase-Kita Ayase) Ayase Sta. 3 min by walk
Property Details
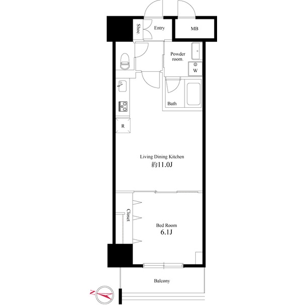
Layout
1LDK
Size
43.6m2
Year Built
2015
Floor
4F /
8F
Window Direction
West
Available from
Please ask the agent
Type
Apartment
Structure
Heavy Steel
Contract Type
Ordinary Lease
2 Years
Transaction Type
Owner
Features
Other Available Rooms
Floor Plan
Floor
Rent
Maintenance Fee
Maintenance Fee
Layout
Size
Size
Details
¥128,000
¥13,0001LDK
47.63m2¥152,000
¥15,0001LDK
41.83m2¥157,000
¥15,0001LDK
43.6m2
























0345792103