Musashiseki Sta. 1K 801
¥110,000 + ¥12,000
(Maintenance Fee)
Sekimachikita 2, Nerima-ku, Tokyo
Seibu Shinjuku Line Musashiseki Sta. 4 min by walk
Property Details
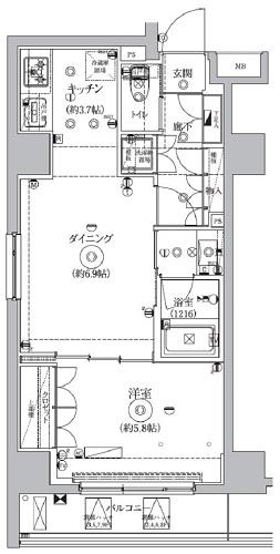
Layout
1K
Size
25.92m2
Year Built
2022
Floor
8F /
9F
Window Direction
South
Available from
Now
Type
Apartment
Structure
Heavy Steel
Contract Type
Ordinary Lease
2 Years
Transaction Type
Owner
Features
Other Available Rooms
Floor Plan
Floor
Rent
Maintenance Fee
Maintenance Fee
Layout
Size
Size
Details




















0345792103