Hamacho Sta. 1LDK 1009
¥266,000 + ¥10,000
(Maintenance Fee)
Nihombashihamacho 1, Chuo-ku, Tokyo
Toei Shinjuku Line Hamacho Sta. 4 min by walk
Toei Asakusa Line Higashi-nihonbashi Sta. 6 min by walk
JR Sobu Line Rapid, JR Sobu Main Line Bakurocho Sta. 8 min by walk
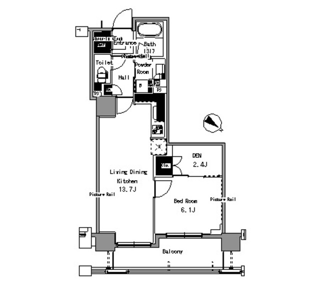
Property Details
Layout
1LDK
Size
50.07m2
Year Built
2006
Floor
10F /
12F
Window Direction
North
Available from
Please ask the agent
Type
Apartment
Structure
Heavy Steel
Contract Type
Ordinary Lease
2 Years
Transaction Type
Agency
Features
Other Available Rooms
Floor Plan
Floor
Rent
Maintenance Fee
Maintenance Fee
Layout
Size
Size
Details
¥286,000
¥10,0002LDK
53.68m2¥265,000
¥10,0001LDK
50.52m2















0345792103