Nishi-shinjuku Sta. 1K 1201
¥152,000 + ¥10,000
(Maintenance Fee)
Kitashinjuku 1, Shinjuku-ku, Tokyo
Tokyo Metro Marunouchi Line Nishi-shinjuku Sta. 7 min by walk
Property Details
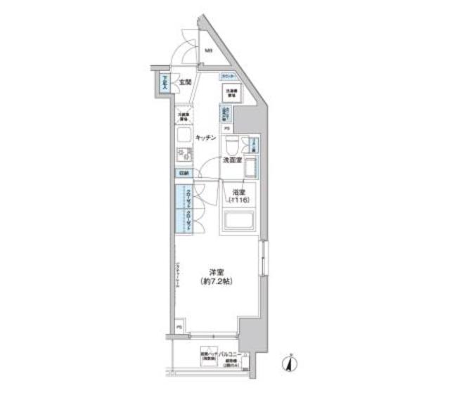
Layout
1K
Size
26.29m2
Year Built
2015
Floor
12F /
4F
Window Direction
South
Available from
Please ask the agent
Type
Apartment
Structure
Heavy Steel
Contract Type
Ordinary Lease
2 Years
Transaction Type
Agency
Features
Other Available Rooms
Floor Plan
Floor
Rent
Maintenance Fee
Maintenance Fee
Layout
Size
Size
Details
¥160,000
¥12,0001LDK
29.28m2¥152,000
¥10,0001K
25.07m2¥151,000
¥10,0001K
26.29m2






















0345792103