Tsukishima Sta. 1LDK 1308
¥383,000 + ¥0
(Maintenance Fee)
Tsukuda 1, Chuo-ku, Tokyo
Tokyo Metro Yurakucho Line, Toei Oedo Line Tsukishima Sta. 7 min by walk
PIANO OK!
Property Details
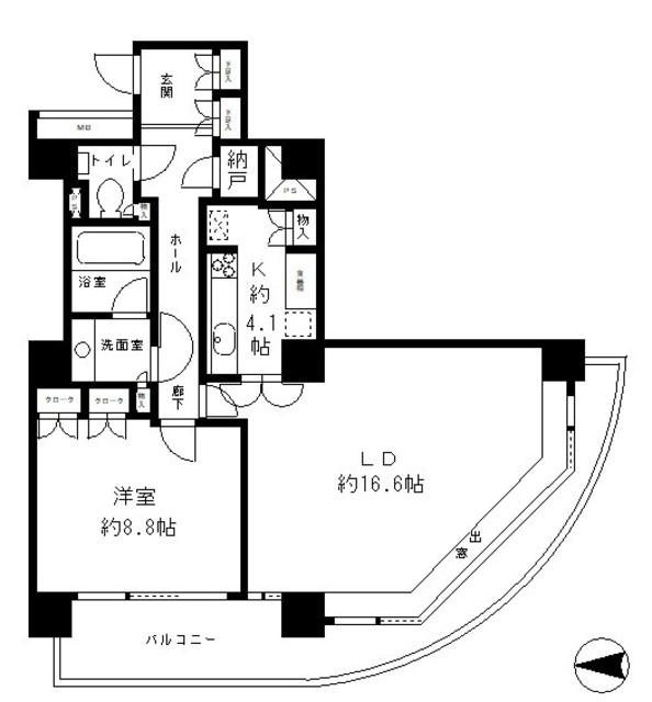
Layout
1LDK
Size
72.69m2
Year Built
1989
Floor
13F /
40F
Window Direction
Southwest
Available from
Please ask the agent
Type
Apartment
Structure
Reinforce Concrete
Contract Type
Ordinary Lease
2 Years
Transaction Type
Agency
Features
Other Available Rooms
Floor Plan
Floor
Rent
Maintenance Fee
Maintenance Fee
Layout
Size
Size
Details






















0345792103