Hiroo Sta. 3LDK 0501
¥780,000 + ¥20,000
(Maintenance Fee)
Nishiazabu 3, Minato-ku, Tokyo
Tokyo Metro Hibiya Line Hiroo Sta. 8 min by walk
Property Details
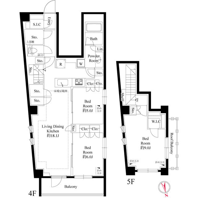
Layout
3LDK
Size
98.5m2
Year Built
2024
Floor
5F /
5F
Window Direction
North
Available from
Please ask the agent
Type
Apartment
Structure
Heavy Steel
Contract Type
Ordinary Lease
2 Years
Transaction Type
Agency
Features
Other Available Rooms
Floor Plan
Floor
Rent
Maintenance Fee
Maintenance Fee
Layout
Size
Size
Details
¥380,000
¥20,0002LDK
54.29m2¥330,000
¥20,0001LDK
44.02m2




























0345792103