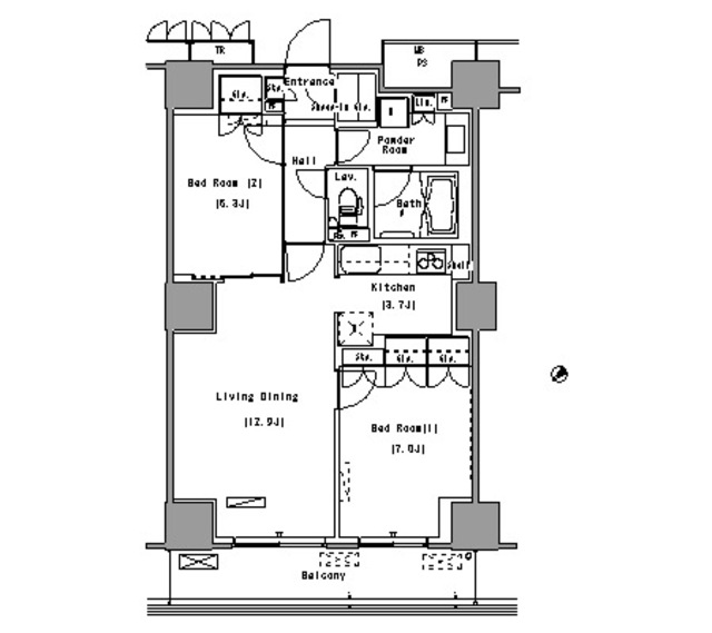
Toyosu Sta. 2LDK 517
Toyosu 6, Koto-ku, Tokyo
Tokyo Metro Yurakucho Line, Yurikamome Toyosu Sta. 9 min by walk
Property Details
Features
Other Available Rooms
Maintenance Fee
Size
¥209,000
¥12,0001DK
33.3m2¥237,000
¥12,0001LDK
46.72m2¥334,000
¥10,0002LDK
69.74m2¥202,000
¥12,0001LDK
38.79m2¥226,000
¥12,0001LDK
47.44m2¥297,000
¥7,0002LDK
61.72m2¥367,000
¥15,0002LDK
61.01m2¥311,000
¥10,0002LDK
65.55m2¥320,000
¥10,0002LDK
65.55m2¥378,000
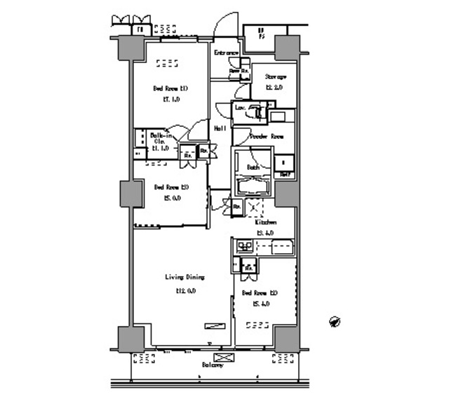
¥12,0003LDK
78.45m2





























0345792103