Oku Sta. 1K 903
¥108,000 + ¥15,000
(Maintenance Fee)
Showamachi 2, Kita-ku, Tokyo
JR Takasaki Line Oku Sta. 1 min by walk
JR Yamanote Line Tabata Sta. 19 min by walk
JR Keihin Tohoku Line Kaminakazato Sta. 13 min by walk
Property Details
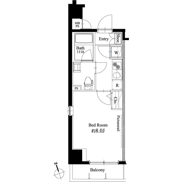
Layout
1K
Size
26.25m2
Year Built
2013
Floor
9F /
10F
Window Direction
Southwest
Available from
Please ask the agent
Type
Apartment
Structure
Heavy Steel
Contract Type
Ordinary Lease
2 Years
Transaction Type
Agency
Features
Other Available Rooms
Floor Plan
Floor
Rent
Maintenance Fee
Maintenance Fee
Layout
Size
Size
Details



















0345792103