Itabashi Sta. 1K 104
¥105,000 + ¥15,000
(Maintenance Fee)
Takinogawa 7, Kita-ku, Tokyo
JR Saikyo Line Itabashi Sta. 5 min by walk
Property Details
Layout
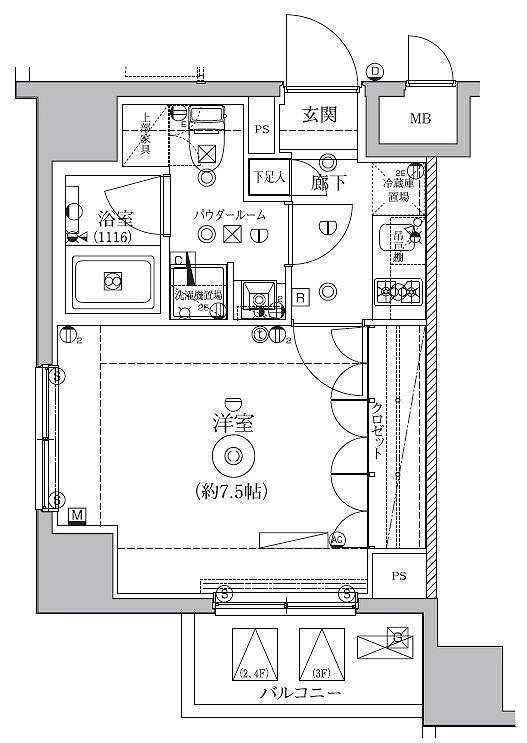
1K
Size
32.24m2
Year Built
2016
Floor
1F /
8F
Window Direction
Northwest
Available from
Please ask the agent
Type
Apartment
Structure
Heavy Steel
Contract Type
Ordinary Lease
2 Years
Transaction Type
Agency




















0345792103