Sakurashinmachi Sta. 1DK 408
¥131,000 + ¥15,000
(Maintenance Fee)
Setagaya 1, Setagaya-ku, Tokyo
Tokyu Denen-toshi Line Sakurashinmachi Sta. 16 min by walk
Tokyu Denen-toshi Line Sangenjaya Sta. 16 min by walk
Property Details
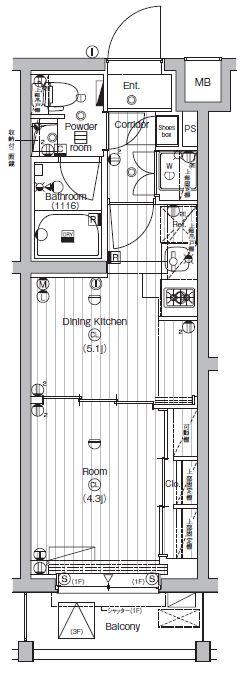
Layout
1DK
Size
25.51m2
Year Built
2020
Floor
4F /
3F
Window Direction
North
Available from
Please ask the agent
Type
Apartment
Structure
Heavy Steel
Contract Type
Ordinary Lease
2 Years
Transaction Type
Owner
Features
Other Available Rooms
Floor Plan
Floor
Rent
Maintenance Fee
Maintenance Fee
Layout
Size
Size
Details



























0345792103