Iwamotocho Sta. 1K 0504
¥134,000 + ¥15,000
(Maintenance Fee)
Iwamotocho 2, Chiyoda-ku, Tokyo
JR Yamanote Line Kanda Sta. 6 min by walk
JR Yamanote Line Akihabara Sta. 9 min by walk
Toei Shinjuku Line Iwamotocho Sta. 4 min by walk
Property Details
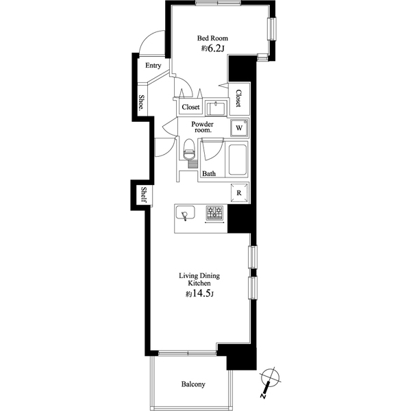
Layout
1K
Size
25.07m2
Year Built
2014
Floor
5F /
14F
Window Direction
Northwest
Available from
Please ask the agent
Type
Apartment
Structure
Heavy Steel
Contract Type
Ordinary Lease
2 Years
Transaction Type
Agency
Features
Other Available Rooms
Floor Plan
Floor
Rent
Maintenance Fee
Maintenance Fee
Layout
Size
Size
Details
¥204,000
¥15,0001LDK
45.81m2¥144,000
¥15,0001LDK
30.04m2


























0345792103