Kamata Sta. 1LDK 1H
¥169,800 + ¥15,000
(Maintenance Fee)
Kamatahoncho 1, Ota-ku, Tokyo
JR Keihin Tohoku Line, Tokyu Ikegami Line, Tokyu Tamagawa Line Kamata Sta. 10 min by walk
Keikyu Line, Keikyu Airport Line Keikyu-kamata Sta. 13 min by walk
Nearby parks schools and nursery. Nearby restaurants shops and convenient stores. Quiet neighborhood. Residential area. Accessible from numerous train stations and/or train lines.
Property Details
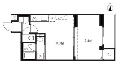
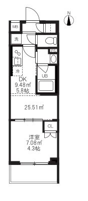
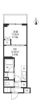
Layout
1LDK
Size
41.03m2
Year Built
2024
Floor
1F /
5F
Window Direction
East
Available from
Now
Type
Apartment
Structure
Heavy Steel
Contract Type
Ordinary Lease
2 Years
Transaction Type
Agency
Features
Other Available Rooms
Floor Plan
Floor
Rent
Maintenance Fee
Maintenance Fee
Layout
Size
Size
Details




































0357313159