Shinokachimachi Sta. 2LDK 5A
¥225,000 + ¥10,000
(Maintenance Fee)
Misuji 2, Taito-ku, Tokyo
Tsukuba Express, Toei Oedo Line Shinokachimachi Sta. 4 min by walk
Toei Asakusa Line, Toei Oedo Line Kuramae Sta. 8 min by walk
Tokyo Metro Ginza Line Tawaramachi Sta. 10 min by walk
Nearby parks schools and nursery. Nearby restaurants shops and convenient stores. Quiet neighborhood. Residential area. Accessible from numerous train stations.
Property Details
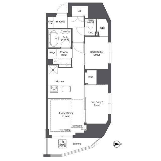
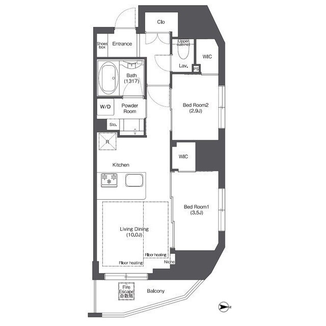
Layout
2LDK
Size
43.24m2
Year Built
2019
Floor
5F /
14F
Window Direction
South
Available from
Now
Type
Apartment
Structure
Heavy Steel
Contract Type
Ordinary Lease
2 Years
Transaction Type
Agency
Features
Other Available Rooms
Floor Plan
Floor
Rent
Maintenance Fee
Maintenance Fee
Layout
Size
Size
Details

























0357313159