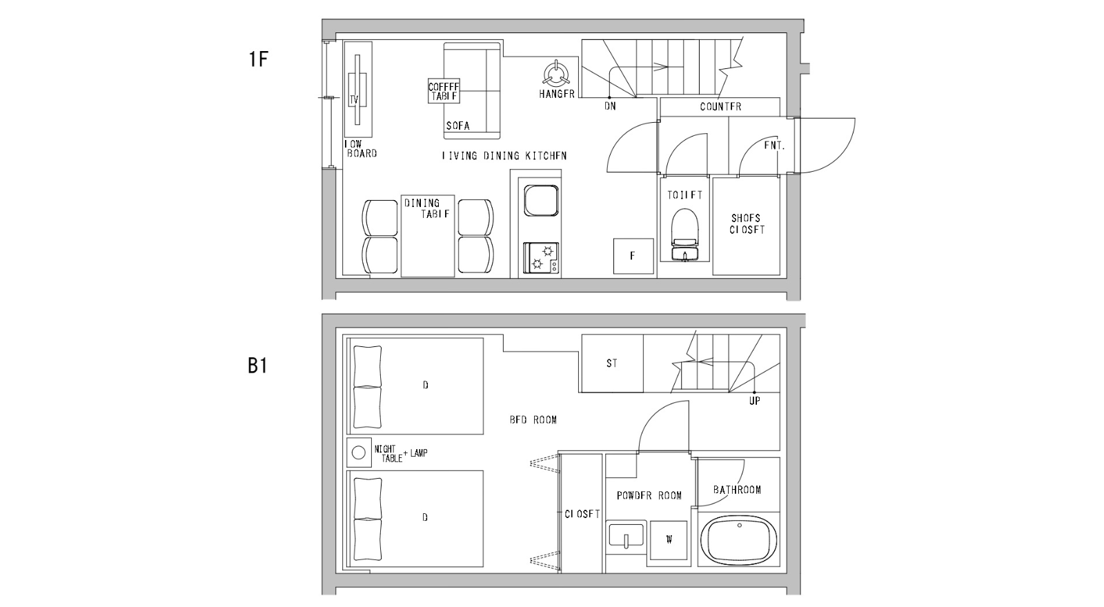
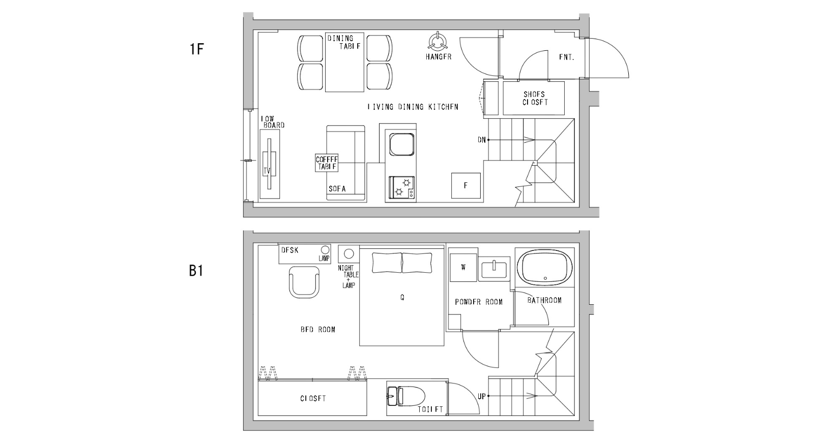
Nakanoshinbashi Sta. 1LDK 103
Honcho 3, Nakano-ku, Tokyo
Tokyo Metro Marunouchi Line, Tokyo Metro Marunouchi Line (Nakano Sakaue-Honancho) Nakanoshinbashi Sta. 5 min by walk
Tokyo Metro Marunouchi Line, Tokyo Metro Marunouchi Line (Nakano Sakaue-Honancho), Toei Oedo Line Nakanosakaue Sta. 10 min by walk
Property Details
Features
Other Available Rooms
Maintenance Fee
Size






















09097098533