Otorii Sta. 1LDK 101
¥143,000 + ¥7,000
(Maintenance Fee)
Nishikojiya 3, Ota-ku, Tokyo
Keikyu Airport Line Otorii Sta. 5 min by walk
Property Details
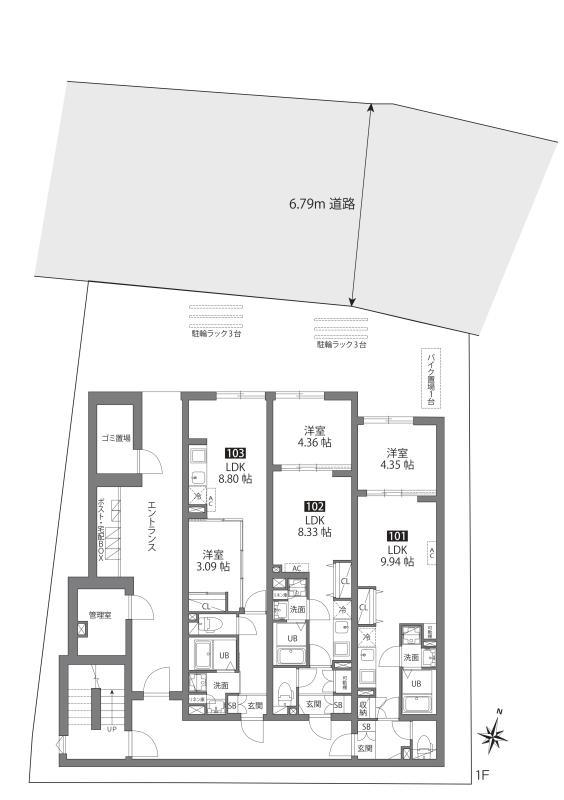
Layout
1LDK
Size
32.31m2
Year Built
2026
Floor
1F /
4F
Window Direction
Unknown
Available from
Please ask the agent
Type
Apartment
Structure
Wooden
Contract Type
Ordinary Lease
2 Years
Transaction Type
Agency
Features
Other Available Rooms
Floor Plan
Floor
Rent
Maintenance Fee
Maintenance Fee
Layout
Size
Size
Details
¥150,000
¥7,0001LDK
30.43m2¥136,000
¥7,0001LDK
30.43m2¥146,000
¥7,0001LDK
32.31m2¥141,000
¥7,0001LDK
30.69m2

























0345792103