Osaki Sta. 1LDK 501
¥220,000 + ¥21,000
(Maintenance Fee)
Nishishinagawa 2, Shinagawa-ku, Tokyo
JR Shonan Shinjuku Line, JR Saikyo Line, JR Yamanote Line, Rinkai Line Osaki Sta. 9 min by walk
PETS OK!(+3500円)
Free Wi-Fi
Property Details
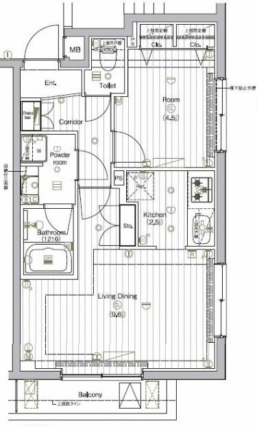
Layout
1LDK
Size
40.68m2
Year Built
2020
Floor
5F /
5F
Window Direction
East
Available from
Please ask the agent
Type
Apartment
Structure
Heavy Steel
Contract Type
Ordinary Lease
2 Years
Transaction Type
Agency
Features
Other Available Rooms
Floor Plan
Floor
Rent
Maintenance Fee
Maintenance Fee
Layout
Size
Size
Details
¥204,500
¥20,0001LDK
40.68m2¥214,000
¥22,0001LDK
41.21m2































0345792103