Hacchobori Sta. 1LDK 11A
¥219,000 + ¥10,000
(Maintenance Fee)
Irifune 1, Chuo-ku, Tokyo
JR Keiyo Line, Tokyo Metro Hibiya Line Hacchobori Sta. 2 min by walk
Tokyo Metro Yurakucho Line Shintomicho Sta. 5 min by walk
Toei Asakusa Line Takaracho Sta. 8 min by walk
Nearby parks schools and nursery. Nearby restaurants shops and convenient stores. Quiet neighborhood. Residential area. Accessible from numerous train stations and/or train lines.
Property Details
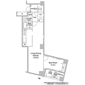
Layout
1LDK
Size
54.54m2
Year Built
2005
Floor
11F /
14F
Window Direction
West
Available from
Please ask the agent
Type
Apartment
Structure
Heavy Steel
Contract Type
Ordinary Lease
2 Years
Transaction Type
Agency
















0357313159