Ikebukuro Sta. 1K 0908
¥143,000 + ¥15,000
(Maintenance Fee)
Minamiikebukuro 1, Toshima-ku, Tokyo
JR Yamanote Line Ikebukuro Sta. 5 min by walk
JR Yamanote Line Mejiro Sta. 6 min by walk
Property Details
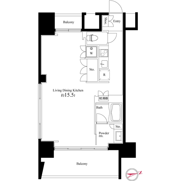
Layout
1K
Size
27.06m2
Year Built
2015
Floor
9F /
11F
Window Direction
Northwest
Available from
Please ask the agent
Type
Apartment
Structure
Heavy Steel
Contract Type
Ordinary Lease
2 Years
Transaction Type
Agency
Features
Other Available Rooms
Floor Plan
Floor
Rent
Maintenance Fee
Maintenance Fee
Layout
Size
Size
Details
¥295,000
¥15,0001SLDK
53.6m2






















0345792103