Akihabara Sta. 1LDK 2007
¥254,000 + ¥15,000
(Maintenance Fee)
Kandasudacho 2, Chiyoda-ku, Tokyo
JR Yamanote Line, JR Keihin Tohoku Line, Tokyo Metro Hibiya Line, Tsukuba Express, JR Chuo-Sobu Line Akihabara Sta. 5 min by walk
Property Details
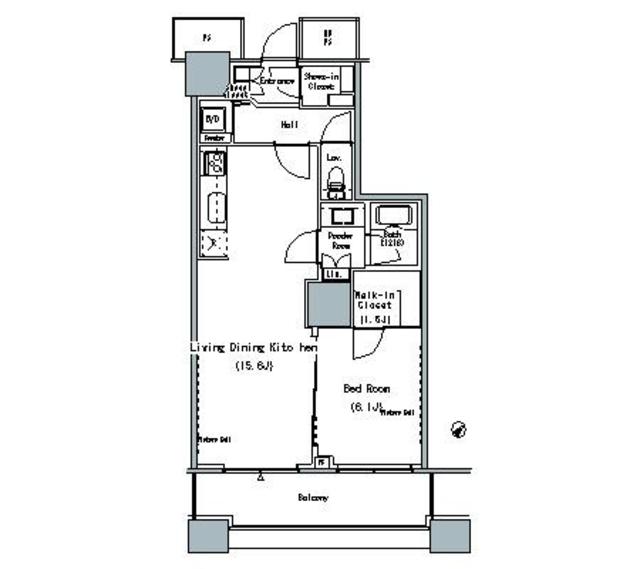
Layout
1LDK
Size
54.21m2
Year Built
2023
Floor
20F /
15F
Window Direction
Southeast
Available from
Please ask the agent
Type
Apartment
Structure
Heavy Steel
Contract Type
Ordinary Lease
2 Years
Transaction Type
Agency
Features
Other Available Rooms
Floor Plan
Floor
Rent
Maintenance Fee
Maintenance Fee
Layout
Size
Size
Details
¥253,000
¥20,0002LDK
45.57m2¥251,000
¥20,0002LDK
45.57m2



















0345792103