Ryogoku Sta. 1K 3K
¥127,000 + ¥10,000
(Maintenance Fee)
Midori 1, Sumida-ku, Tokyo
Toei Oedo Line Ryogoku Sta. 6 min by walk
Toei Shinjuku Line, Toei Oedo Line Morishita Sta. 6 min by walk
JR Chuo-Sobu Line Ryogoku Sta. 10 min by walk
Nearby parks schools and nursery. Nearby restaurants shops and convenient stores. Quiet neighborhood. Residential area. Accessible from numerous train stations.
Property Details
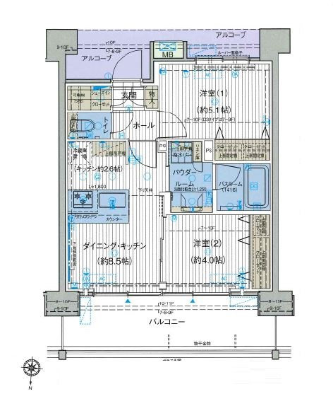
Layout
1K
Size
25.78m2
Year Built
2020
Floor
3F /
11F
Window Direction
North
Available from
Now
Type
Apartment
Structure
Heavy Steel
Contract Type
Ordinary Lease
2 Years
Transaction Type
Agency
Features
Other Available Rooms
Floor Plan
Floor
Rent
Maintenance Fee
Maintenance Fee
Layout
Size
Size
Details
¥124,000
¥10,0001K
25.78m2¥125,000
¥10,0001K
25.78m2¥125,000
¥10,0001K
25.78m2





























0357313159