Kanamachi Sta. 1K 402
¥90,000 + ¥15,000
(Maintenance Fee)
Kanamachi 3, Katsushika-ku, Tokyo
JR Joban Line Kanamachi Sta. 5 min by walk
Property Details
Layout
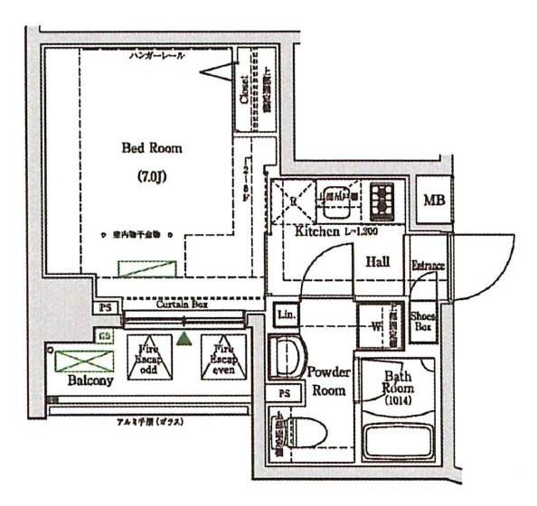
1K
Size
22.5m2
Year Built
2024
Floor
4F /
9F
Window Direction
Northwest
Available from
Please ask the agent
Type
Apartment
Structure
Heavy Steel
Contract Type
Ordinary Lease
2 Years
Transaction Type
Agency
Features
Other Available Rooms
Floor Plan
Floor
Rent
Maintenance Fee
Maintenance Fee
Layout
Size
Size
Details































0345792103