Nishi-sugamo Sta. 1R 203
¥94,000 + ¥8,000
(Maintenance Fee)
Takinogawa 7, Kita-ku, Tokyo
Toei Mita Line Nishi-sugamo Sta. 5 min by walk
Pets OK!
Piano OK!
Property Details
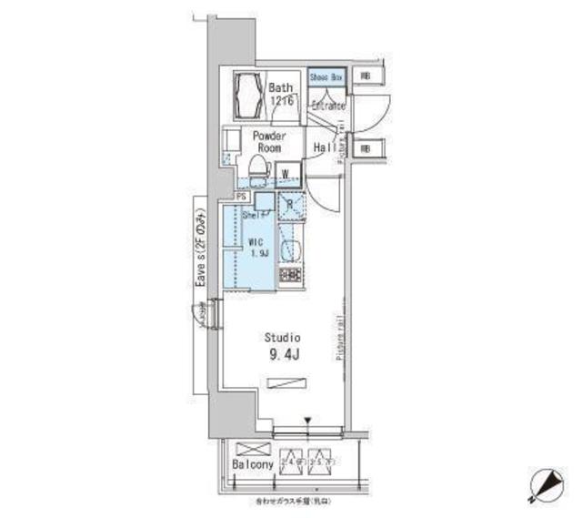
Layout
1R
Size
28.23m2
Year Built
2012
Floor
2F /
13F
Window Direction
Northwest
Available from
Please ask the agent
Type
Apartment
Structure
Heavy Steel
Contract Type
Ordinary Lease
2 Years
Transaction Type
Owner
Features
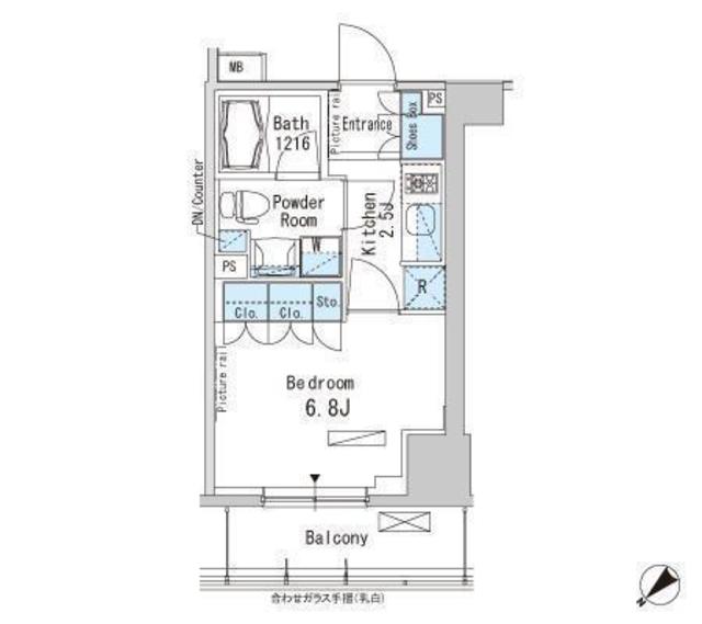
Other Available Rooms
Floor Plan
Floor
Rent
Maintenance Fee
Maintenance Fee
Layout
Size
Size
Details
¥135,000
¥10,0001LDK
33.09m2¥218,000
¥12,0002LDK
56.72m2¥212,000
¥12,0002LDK
50.8m2¥154,000
¥10,0001LDK
33.09m2
















0345792103