Nakameguro Sta. 1LDK 6D
¥298,000 + ¥10,000
(Maintenance Fee)
Aobadai 1, Meguro-ku, Tokyo
Tokyu Toyoko Line, Tokyo Metro Hibiya Line Nakameguro Sta. 5 min by walk
Tokyu Toyoko Line Daikanyama Sta. 10 min by walk
Nearby parks schools and nursery. Nearby restaurants shops and convenient stores. Quiet neighborhood. Residential area. Accessible from numerous train stations and/or train lines.
Property Details
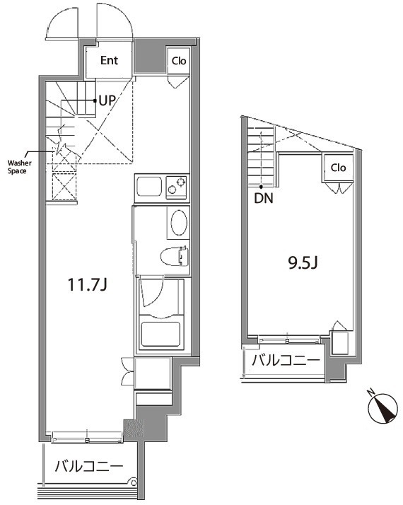
Layout
1LDK
Size
50.5m2
Year Built
2008
Floor
6F /
7F
Window Direction
South
Available from
Now
Type
Apartment
Structure
Heavy Steel
Contract Type
Ordinary Lease
2 Years
Transaction Type
Agency


































0357313159