Onarimon Sta. 2LDK 2001
¥464,000 + ¥0
(Maintenance Fee)
Nishishimbashi 3, Minato-ku, Tokyo
Tokyo Metro Hibiya Line Kamiyacho Sta. 7 min by walk
Toei Mita Line Onarimon Sta. 6 min by walk
Property Details
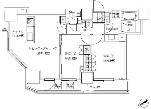
Layout
2LDK
Size
60.92m2
Year Built
2007
Floor
20F /
31F
Window Direction
West
Available from
Please ask the agent
Type
Apartment
Structure
Heavy Steel
Contract Type
Ordinary Lease
2 Years
Transaction Type
Agency
Features
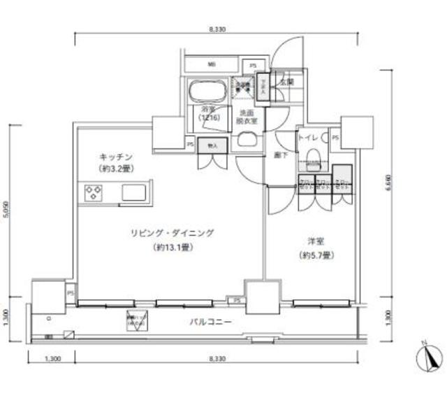
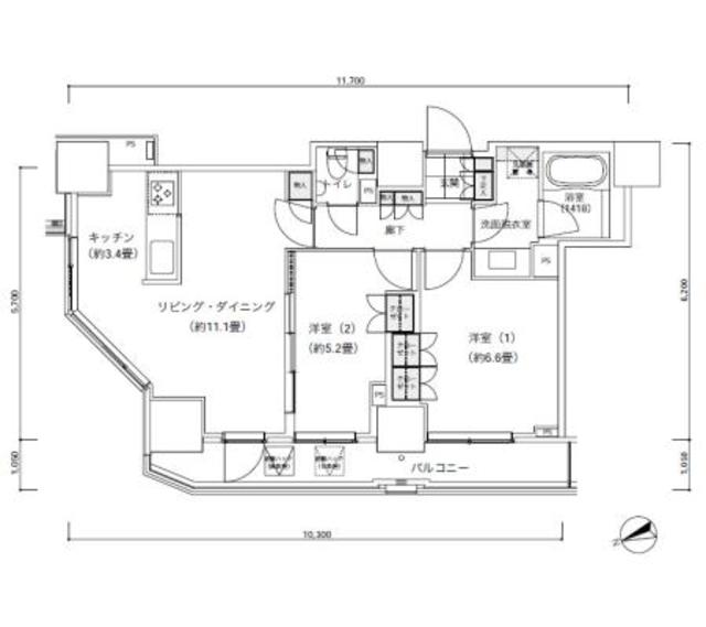
Other Available Rooms
Floor Plan
Floor
Rent
Maintenance Fee
Maintenance Fee
Layout
Size
Size
Details

































0345792103