Ueno Sta. 2K 403
Matsugaya 2, Taito-ku, Tokyo
JR Tohoku Shinkannsen, JR Jo-etsu Shinkannsen, JR Hokuriku Shinkansen, JR Yamagata Shinkansen, JR Akita Shinkansen, JR Utsunomiya Line, JR Joban Line, JR Takasaki Line, JR Yamanote Line, JR Keihin Tohoku Line, Tokyo Metro Ginza Line, Tokyo Metro Hibiya Line, JR Ueno-Tokyo Line Ueno Sta. 11 min by walk
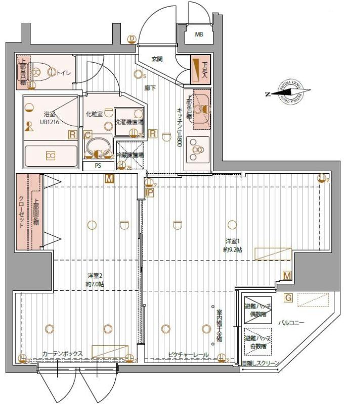
Property Details
Features
Other Available Rooms
Maintenance Fee
Size










0345792103