Nakai Sta. 1K 505
¥105,000 + ¥15,000
(Maintenance Fee)
Kamiochiai 3, Shinjuku-ku, Tokyo
Seibu Shinjuku Line, Toei Oedo Line Nakai Sta. 4 min by walk
Property Details
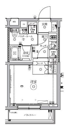
Layout
1K
Size
25.79m2
Year Built
2021
Floor
5F /
5F
Window Direction
West
Available from
Please ask the agent
Type
Apartment
Structure
Heavy Steel
Contract Type
Ordinary Lease
2 Years
Transaction Type
Agency
Features
Other Available Rooms
Floor Plan
Floor
Rent
Maintenance Fee
Maintenance Fee
Layout
Size
Size
Details

























0345792103