Honancho Sta. 1R 402
¥113,000 + ¥5,000
(Maintenance Fee)
Horinochi 2, Suginami-ku, Tokyo
Tokyo Metro Marunouchi Line, Tokyo Metro Marunouchi Line (Nakano Sakaue-Honancho) Honancho Sta. 9 min by walk
Tokyo Metro Marunouchi Line Higashi-koenji Sta. 15 min by walk
Property Details
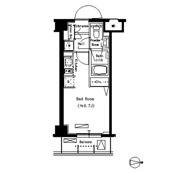
Layout
1R
Size
23.72m2
Year Built
2005
Floor
4F /
10F
Window Direction
East
Available from
Please ask the agent
Type
Apartment
Structure
Reinforce Concrete
Contract Type
Ordinary Lease
2 Years
Transaction Type
Agency














0345792103