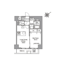
Oshiage Sta. 1LDK 3F
Mukojima 5, Sumida-ku, Tokyo
Tobu Sky Tree Line, Tobu Sky Tree Line (Hikifune-Oshiage), Keisei Oshiage Line, Tokyo Metro Hanzomon Line, Toei Asakusa Line Oshiage Sta. 11 min by walk
Tobu Sky Tree Line, Tobu Sky Tree Line (Hikifune-Oshiage), Tobu Kamedo Line Hikifune Sta. 12 min by walk
Property Details
Features
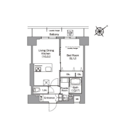
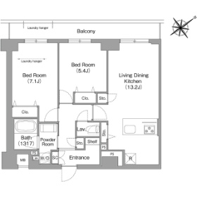
Other Available Rooms
Maintenance Fee
Size







































0357313159