Akebonobashi Sta. 1K 9D
Ichigayanakanocho, Shinjuku-ku, Tokyo
Toei Shinjuku Line Akebonobashi Sta. 5 min by walk
Toei Oedo Line Ushigomeyanagicho Sta. 7 min by walk
Tokyo Metro Marunouchi Line Yotsuya-sanchome Sta. 14 min by walk
Nearby parks schools and nursery. Nearby restaurants shops and convenient stores. Quiet neighborhood. Residential area. Accessible from numerous train stations.
Property Details
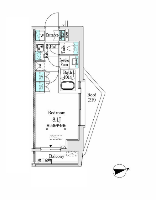
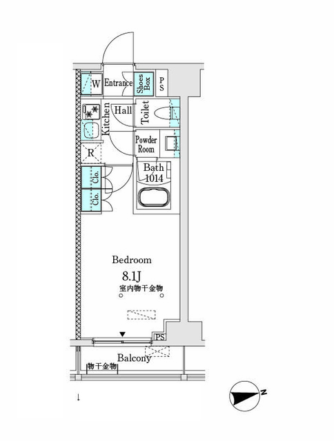
Layout
1K
Size
25.11m2
Year Built
2019
Floor
9F /
12F
Window Direction
East
Available from
Please ask the agent
Type
Apartment
Structure
Heavy Steel
Contract Type
Ordinary Lease
2 Years
Transaction Type
Agency
























0357313159