Kiyosumishirakawa Sta. 1K 201
¥136,000 + ¥10,000
(Maintenance Fee)
Shirakawa 2, Koto-ku, Tokyo
Tokyo Metro Hanzomon Line, Toei Oedo Line Kiyosumishirakawa Sta. 2 min by walk
Property Details
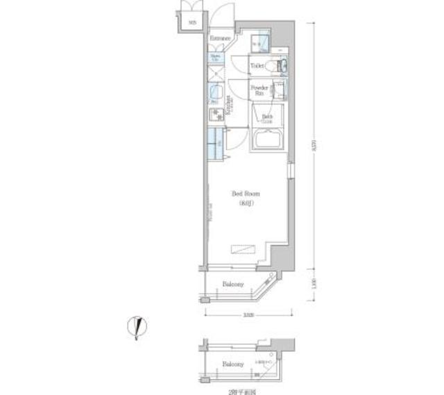
Layout
1K
Size
25.65m2
Year Built
2016
Floor
2F /
8F
Window Direction
North
Available from
Please ask the agent
Type
Apartment
Structure
Heavy Steel
Contract Type
Ordinary Lease
2 Years
Transaction Type
Agency
Features
Other Available Rooms
Floor Plan
Floor
Rent
Maintenance Fee
Maintenance Fee
Layout
Size
Size
Details























0345792103