Higashi-Jūjo Sta. 3LDK 5A
¥281,000 + ¥15,000
(Maintenance Fee)
Higashijujo 3, Kita-ku, Tokyo
JR Keihin Tohoku Line Higashi-Jūjo Sta. 5 min by walk
JR Saikyo Line Jujo Sta. 13 min by walk
JR Keihin Tohoku Line, Tokyo Metro Nanboku Line Oji Sta. 20 min by walk
Nearby parks schools and nursery. Nearby restaurants shops and convenient stores. Quiet neighborhood. Residential area. Accessible from numerous train stations and/or train lines.
Property Details
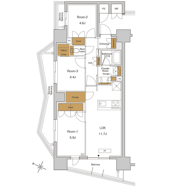
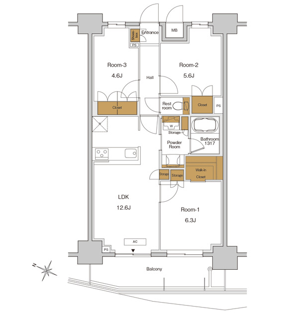
Layout
3LDK
Size
63.36m2
Year Built
2025
Floor
5F /
14F
Window Direction
Southwest
Available from
Now
Type
Apartment
Structure
Heavy Steel
Contract Type
Ordinary Lease
2 Years
Transaction Type
Agency
Features
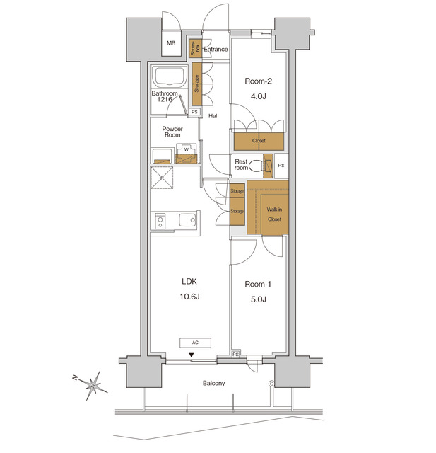
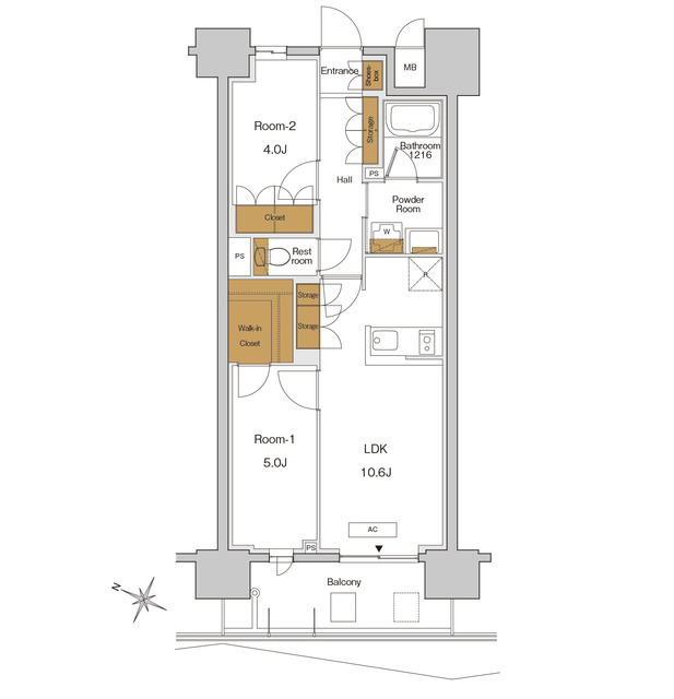
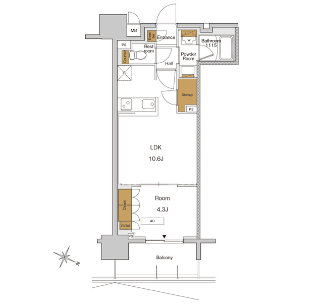
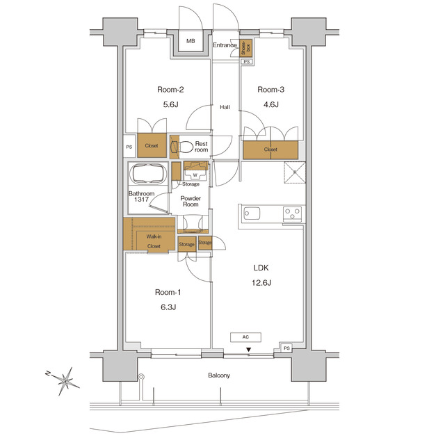
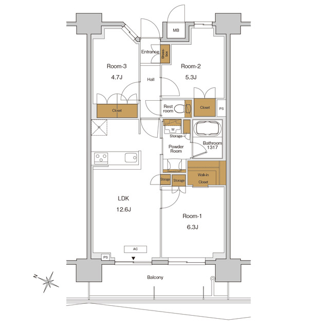
Other Available Rooms
Floor Plan
Floor
Rent
Maintenance Fee
Maintenance Fee
Layout
Size
Size
Details
¥267,000
¥15,0003LDK
65.02m2¥268,000
¥15,0003LDK
65.02m2¥268,000
¥15,0003LDK
65.02m2





























0357313159