Saginuma Sta. 3LDK 1247517-5K
¥298,000 + ¥15,000
(Maintenance Fee)
Saginuma 3, Kawasaki-shi miyamae-ku, Kanagawa
Tokyu Denen-toshi Line Saginuma Sta. 2 min by walk
Nearby parks schools and nursery. Nearby restaurants shops and convenient stores. Quiet neighborhood. Residential area.
Property Details
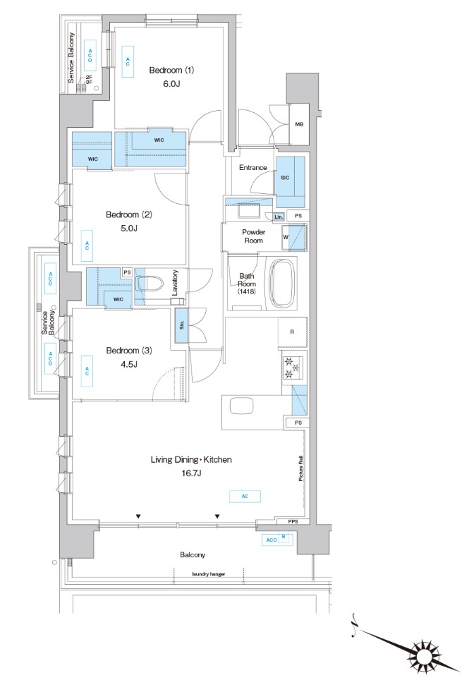
Layout
3LDK
Size
79.67m2
Year Built
2024
Floor
5F /
7F
Window Direction
Southeast
Available from
Now
Type
Apartment
Structure
Heavy Steel
Contract Type
Ordinary Lease
2 Years
Transaction Type
Agency





















0357313159