西巢鸭车站 1R 403
¥135,000 + ¥10,000
(管理费)
东京都北区泷野川七丁目
都营地铁三田线西巢鸭车站 徒歩5分钟
Pets OK!
Piano OK!
物件资讯
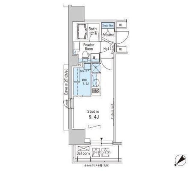
格局
1R
面积
28.23m2
建筑年数
2012
楼层
4F /
13F
房屋朝向
西北方
起租日期
请询问仲介公司
类型
公寓
结构
重型钢构
契约种类
一般租赁合约
2年份
交易形式
屋主自租
特色
其他有空室的物件
平面图
楼层
租金
管理费
管理费
格局
面积
面积
物件资讯




















0345792103