早稻田车站 1K 203
¥109,000 + ¥13,000
(管理费)
东京都丰岛区高田一丁目
东京地铁副都心线杂司谷车站 徒歩9分钟
都电荒川线早稻田车站 徒歩5分钟
物件资讯
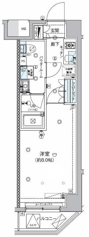
格局
1K
面积
25.81m2
建筑年数
2020
楼层
2F /
8F
房屋朝向
北方
起租日期
请询问仲介公司
类型
公寓
结构
重型钢构
契约种类
一般租赁合约
2年份
交易形式
房屋仲介
特色
其他有空室的物件
平面图
楼层
租金
管理费
管理费
格局
面积
面积
物件资讯























0345792103