亀户水神车站 1K 504
¥85,000 + ¥15,000
(管理费)
东京都墨田区立花三丁目
东武龟户线亀户水神车站 徒歩5分钟
PET Friendly (+3500円)
物件资讯
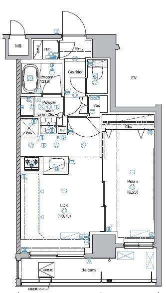
格局
1K
面积
25.8m2
建筑年数
2018
楼层
5F /
9F
房屋朝向
西方
起租日期
请询问仲介公司
类型
公寓
结构
重型钢构
契约种类
一般租赁合约
2年份
交易形式
房屋仲介
特色
其他有空室的物件
平面图
楼层
租金
管理费
管理费
格局
面积
面积
物件资讯




















0345792103