泉岳寺车站 1K 303
¥119,500 + ¥16,000
(管理费)
东京都港区三田四丁目
京急本线, 都营地铁浅草线泉岳寺车站 徒歩7分钟
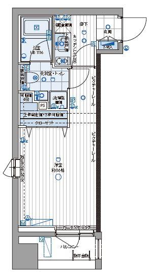
物件资讯
格局
1K
面积
25.11m2
建筑年数
2015
楼层
3F /
8F
房屋朝向
東北方
起租日期
请询问仲介公司
类型
公寓
结构
重型钢构
契约种类
一般租赁合约
2年份
交易形式
房屋仲介
特色
其他有空室的物件
平面图
楼层
租金
管理费
管理费
格局
面积
面积
物件资讯


























0345792103