上野车站 2LDK 201
¥229,000 + ¥15,000
(管理费)
东京都台东东上野5丁目
JR东北新干线, JR上越新干线, JR北陆新干线, JR山形新干线, JR秋田新干线, JR宇都宫线, JR常磐线, JR高崎线, JR山手线, JR京滨东北线, 东京地铁银座线, 东京地铁日比谷线, JR上野东京线上野车站 徒歩7分钟
物件资讯
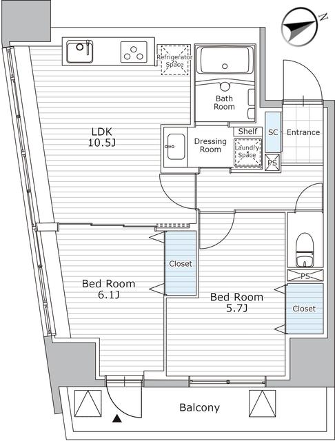
格局
2LDK
面积
52.54m2
建筑年数
2025
楼层
2F /
12F
房屋朝向
南方
起租日期
请询问仲介公司
类型
公寓
结构
重型钢构
契约种类
一般租赁合约
2年份
交易形式
房屋仲介
特色
其他有空室的物件
平面图
楼层
租金
管理费
管理费
格局
面积
面积
物件资讯






















0345792103