蒲田车站 2LDK 14G
¥297,000 + ¥15,000
(管理费)
东京都大田区西蒲俣7丁目
JR京滨东北线, 东急池上线, 东急多摩川线蒲田车站 徒歩4分钟
东急池上线莲沼车站 徒歩7分钟
东急多摩川线矢口渡车站 徒歩17分钟
Nearby parks schools and nursery. Nearby restaurants shops and convenient stores. Quiet neighborhood. Residential area. Accessible from numerous train stations and/or train lines.
物件资讯
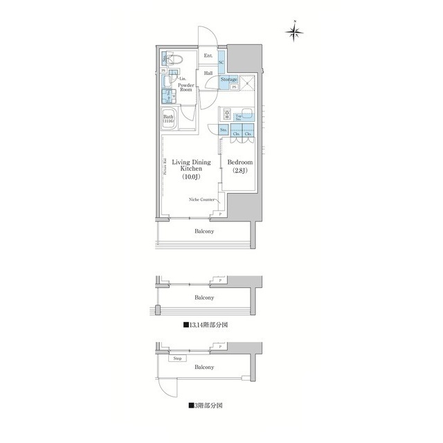
格局
2LDK
面积
52.83m2
建筑年数
2026
楼层
14F /
14F
房屋朝向
北方
起租日期
现在
类型
公寓
结构
重型钢构
契约种类
一般租赁合约
2年份
交易形式
房屋仲介






























0357313159