牛込柳町車站 1DK 102
¥207,000 + ¥21,000
(管理費)
東京都新宿區弁天喬
都營地鐵大江戶線牛込柳町車站 徒歩6分鐘
東京地鐵東西線早稲田車站 徒歩8分鐘
東京地鐵東西線神楽坂車站 徒歩11分鐘
這棟設計師公寓建於2023年。
公寓配備時尚的家具和家電。
公寓位於新宿區,交通便利,距離車站僅5分鐘步行路程。適合短期和長期入住。
*很抱歉,由於該房產無人看管,我們無法接待參觀。
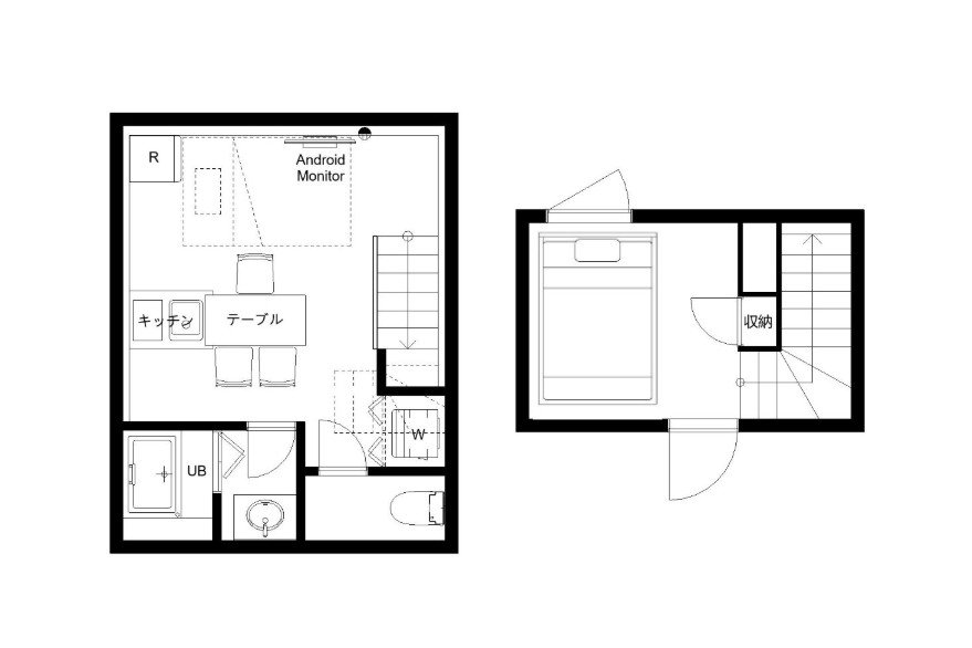
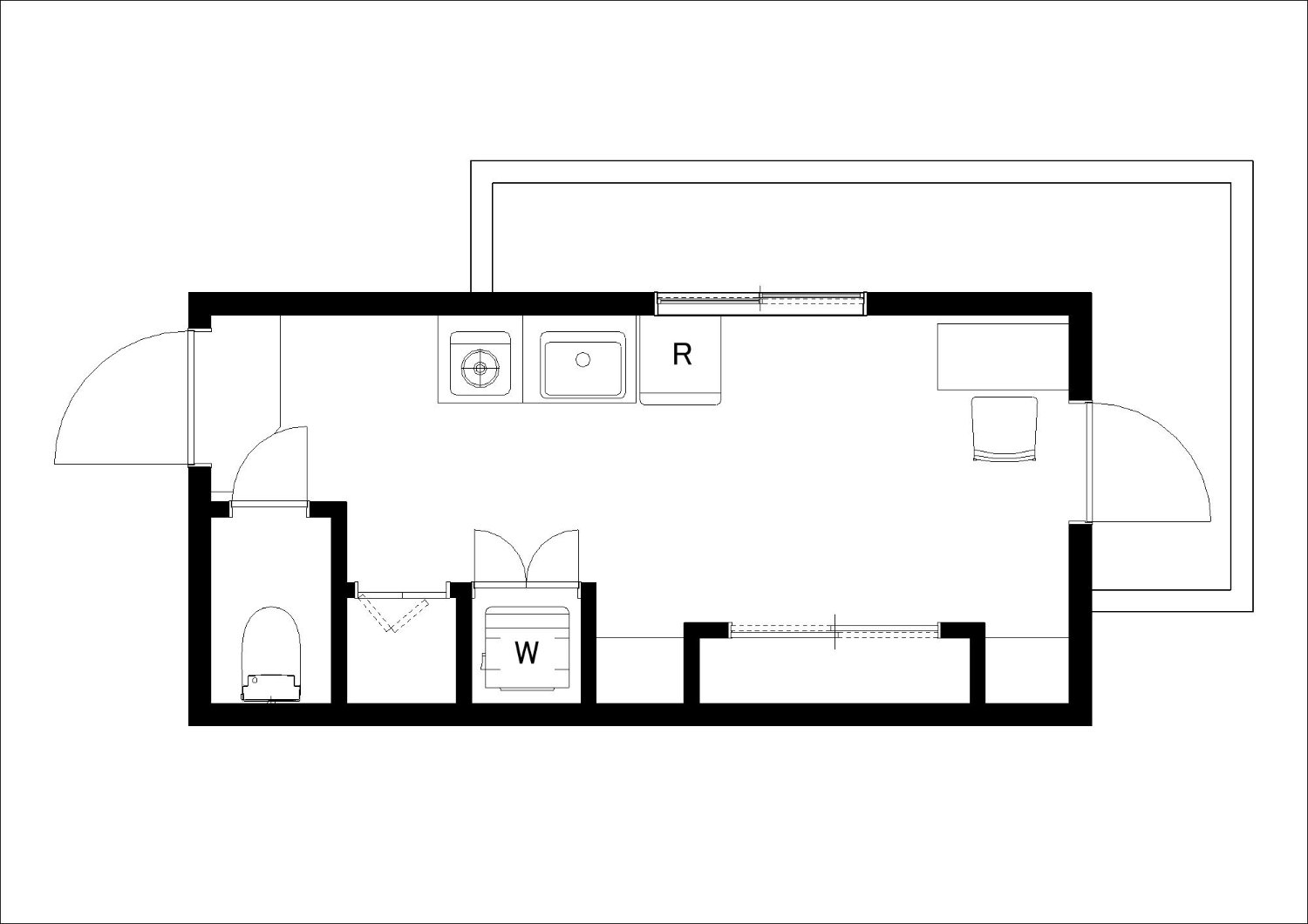
物件資訊
格局
1DK
面積
30.4m2
建築年份
2023
樓層
1F /
5F
房屋朝向
不明
起租日期
現在
類型
公寓
結構
重型鋼構
契約種類
普通租賃合約
一個月
交易形式
屋主自租




























0362280440