本郷三丁目車站 1DK 417
¥180,000 + ¥12,000
(管理費)
東京都文京區本鄉五丁目
東京地鐵丸之内线, 都營地鐵大江戶線本郷三丁目車站 徒歩6分鐘
物件資訊
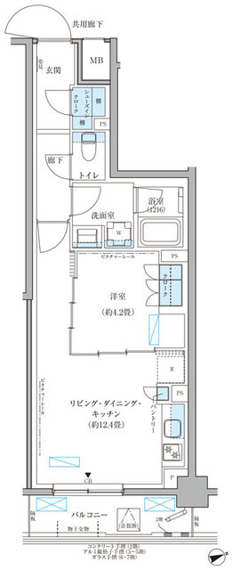
格局
1DK
面積
28.46m2
建築年份
2025
樓層
4F /
8F
房屋朝向
南方
起租日期
請詢問仲介公司
類型
公寓
結構
重型鋼構
契約種類
普通租賃合約
2年份
交易形式
房屋仲介
特色
其他有空室的物件
平面圖
樓層
租金
管理費
管理費
格局
面積
面積
物件資訊
















































0345792103