東十条車站 2LDK 904
¥219,000 + ¥15,000
(管理費)
東京都北區東十條三丁目
JR京濱東北線東十条車站 徒歩2分鐘
物件資訊
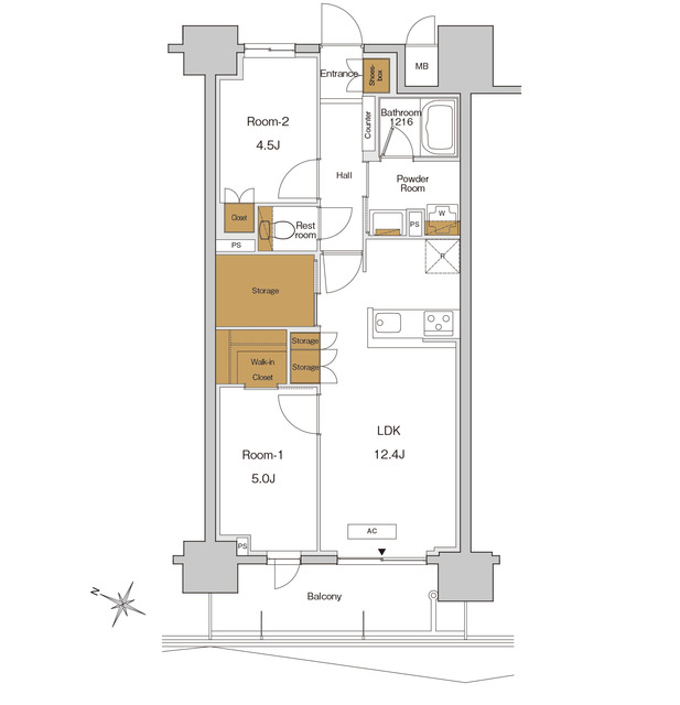
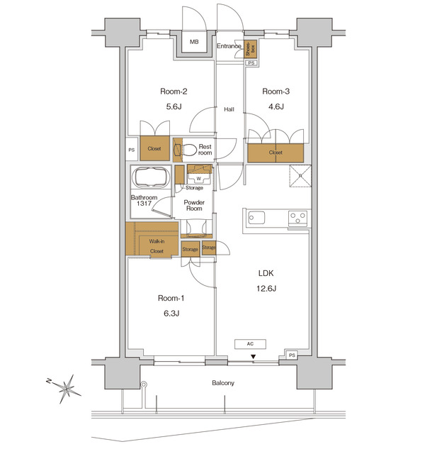
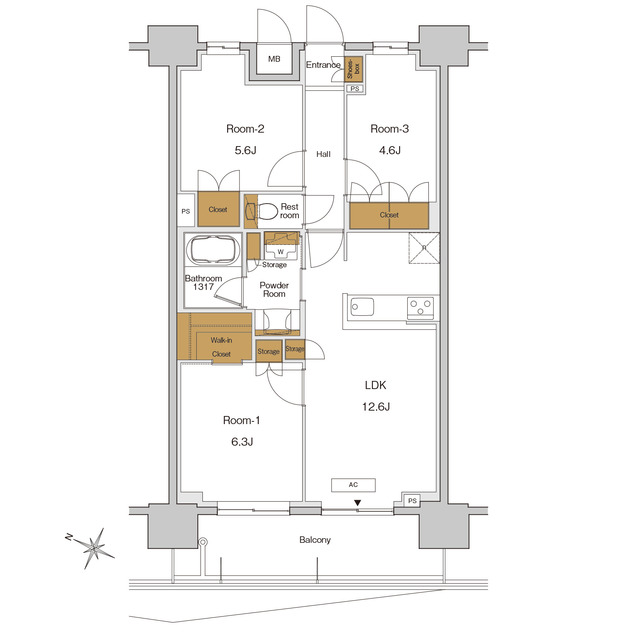
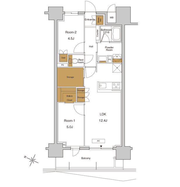
格局
2LDK
面積
49.77m2
建築年份
2025
樓層
9F /
14F
房屋朝向
南西方
起租日期
請詢問仲介公司
類型
公寓
結構
重型鋼構
契約種類
普通租賃合約
2年份
交易形式
房屋仲介
特色
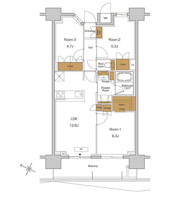
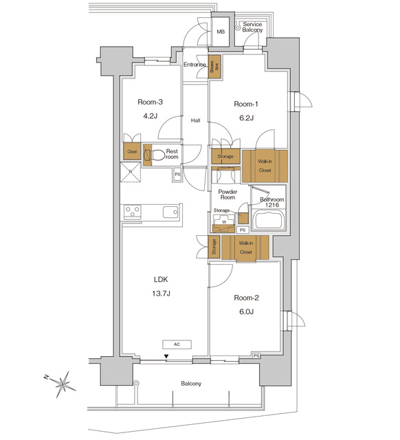
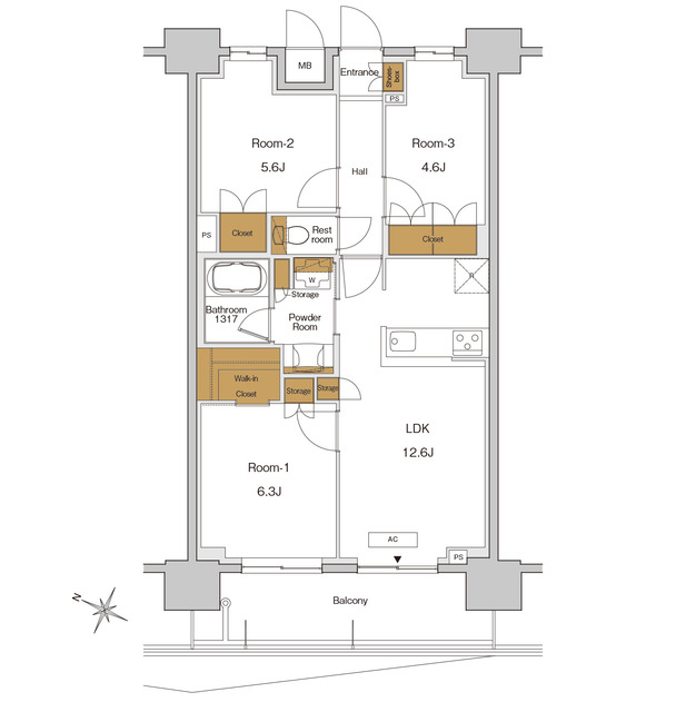
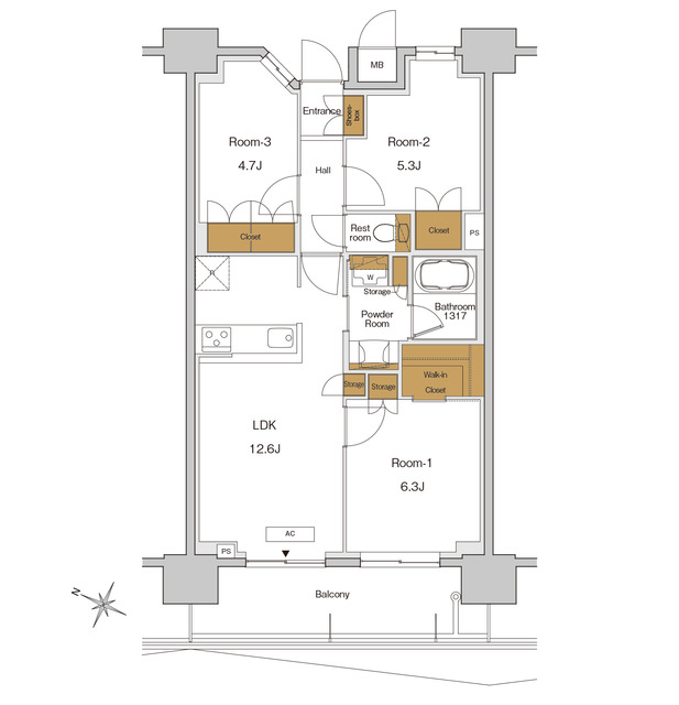
其他有空室的物件
平面圖
樓層
租金
管理費
管理費
格局
面積
面積
物件資訊
















































0345792103