緑丘車站 3LDK 1273418-4B
¥280,000 + ¥20,000
(管理費)
東京都目黑綠丘一丁目
東急大井町線緑丘車站 徒歩1分鐘
東急目黒線, 東急大井町線大岡山車站 徒歩10分鐘
東急東横線, 東急大井町線自由丘車站 徒歩15分鐘
Nearby parks schools and nursery. Nearby restaurants shops and convenient stores. Quiet neighborhood. Residential area. Accessible from numerous train stations and/or train lines.
物件資訊
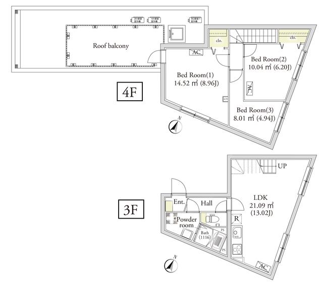
格局
3LDK
面積
75.66m2
建築年份
2025
樓層
4F /
4F
房屋朝向
東北方
起租日期
現在
類型
公寓
結構
重型鋼構
契約種類
普通租賃合約
2年份
交易形式
房屋仲介
















0357313159