亀戶車站 1R 907
¥99,000 + ¥8,000
(管理費)
東京都江東區龜戶二丁目
JR総武本線, 東武龜戸線, JR中央、總武線各站停車亀戶車站 徒歩5分鐘
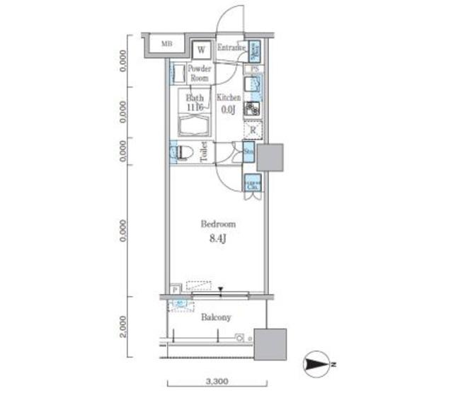
物件資訊
格局
1R
面積
25.66m2
建築年份
2007
樓層
9F /
13F
房屋朝向
北方
起租日期
請詢問仲介公司
類型
公寓
結構
重型鋼構
契約種類
普通租賃合約
2年份
交易形式
房屋仲介
特色
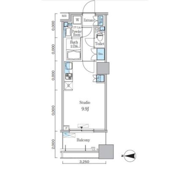
其他有空室的物件
平面圖
樓層
租金
管理費
管理費
格局
面積
面積
物件資訊


















0345792103