三之輪車站 2SLDK 2D
¥213,000 + ¥20,000
(管理費)
東京都荒川東日暮二丁目
東京地鐵日比谷線三之輪車站 徒歩9分鐘
JR常磐線三河島車站 徒歩12分鐘
東京地鐵日比谷線入谷車站 徒歩17分鐘
Nearby parks schools and nursery. Nearby restaurants shops and convenient stores. Quiet neighborhood. Residential area. Accessible from numerous train stations and/or train lines.
物件資訊
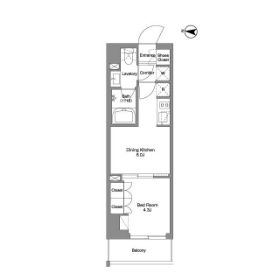
格局
2SLDK
面積
50.16m2
建築年份
2025
樓層
2F /
10F
房屋朝向
西方
起租日期
現在
類型
公寓
結構
重型鋼構
契約種類
普通租賃合約
2年份
交易形式
房屋仲介
特色
其他有空室的物件
平面圖
樓層
租金
管理費
管理費
格局
面積
面積
物件資訊
































0357313159