勝鬨車站 1LDK 1051813-12A
東京都中央區勝哄六丁目
都營地鐵大江戶線勝鬨車站 徒歩6分鐘
Nearby parks schools and nursery. Nearby restaurants shops and convenient stores. Quiet neighborhood. Residential area. Accessible from numerous train stations.
物件資訊
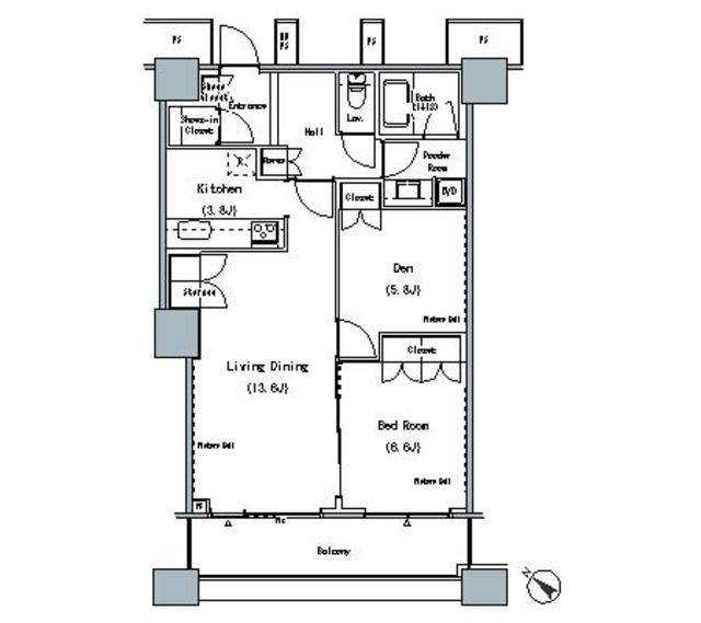
格局
1LDK
面積
81.93m2
建築年份
2008
樓層
12F /
58F
房屋朝向
東方
起租日期
現在
類型
公寓
結構
重型鋼構
契約種類
普通租賃合約
2年份
交易形式
房屋仲介
特色
其他有空室的物件
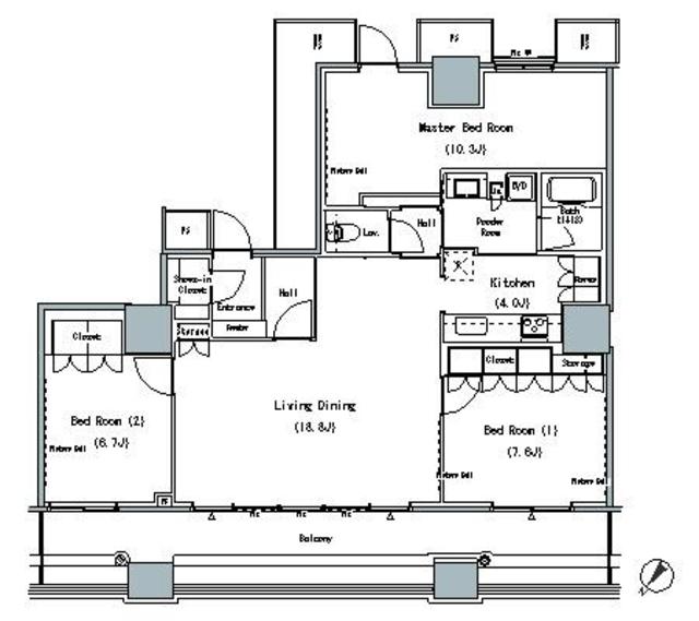
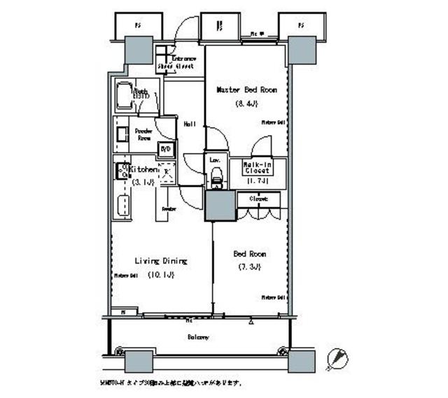
平面圖
樓層
租金
管理費
管理費
格局
面積
面積
物件資訊
¥480,000
¥20,0001DK
105.18m2¥302,000
¥15,0001LDK
67.72m2¥233,000
¥15,0001LDK
52.29m2¥422,000
¥20,0002SLDK
87.34m2

















































0357313159