南砂町車站 1LDK 806
¥150,000 + ¥12,000
(管理費)
東京都江東區南砂二丁目
東京地鐵東西線東陽町車站 徒歩15分鐘
東京地鐵東西線南砂町車站 徒歩11分鐘
物件資訊
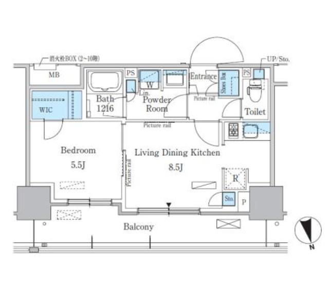
格局
1LDK
面積
39.69m2
建築年份
2014
樓層
9F /
14F
房屋朝向
南方
起租日期
現在
類型
公寓
結構
重型鋼構
契約種類
普通租賃合約
2年份
交易形式
屋主自租
特色
其他有空室的物件
平面圖
樓層
租金
管理費
管理費
格局
面積
面積
物件資訊































0345792103